Na sprzedaż jest ostatni, wolny i gotowy do wprowadzenia apartament nr 2.2. Jest położony na II piętrze i jest jednym z największych lokali w naszej inwestycji - ma powierzchnię 43,62 m2. Posiada też bardzo duży balkon (7,77 m2) z wystawą od strony zachodniej. Dzięki takiemu ustawieniu apartament jest bardzo jasny i słoneczny. Lokal jest w pełni wykończony i gotowy do zamieszkania od ręki. Jest również wyposażony w wysokiej jakości meble, sprzęt AGD, internet oraz telewizor.
Nowoczesny 2-pokojowy apartament na sprzedaż o powierzchni 32,75 m² znajduje się w nowo budowanej inwestycji przy ul. Bursztynowej 7 w Łukęcinie (malowniczej, spokojnej miejscowości położonej 5 km od Dziwnówka i 4km od Pobierowa). Apartament znajduje się na parterze. Usytuowany jest bardzo korzystnie – od strony południowo-zachodniej.
Na powierzchnię apartamentu składają się:Do mieszkania przynależy miejsce parkingowe. Docelowo w budynku znajdować się będzie 9 ekskluzywnych apartamentów o powierzchni od 26,67 m2 do 43,38 m2 usytuowanych na trzech kondygnacjach. Nowoczesną architekturę budynku uzupełniają duże balkony oraz ogródki, na których można zrobić tarasy. Obiekt do użytkowania tylko przez właścicieli i mieszkańców ośrodka. Jakość wykonania inwestycji gwarantuje sprawdzony Generalny Wykonawca PB Rytter – firma budowlana z ponad 20-letnim doświadczeniem, która zrealizowała już wiele nadmorskich inwestycji.
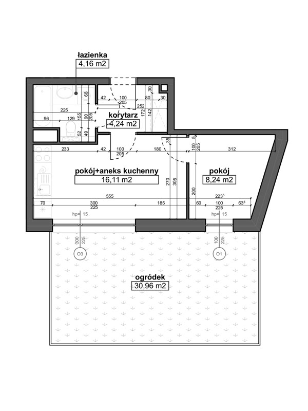
Nowoczesny 2-pokojowy apartament na sprzedaż o powierzchni 36,91 m² znajduje się w nowo budowanej inwestycji przy ul. Bursztynowej 7 w Łukęcinie (malowniczej, spokojnej miejscowości położonej 5 km od Dziwnówka i 4km od Pobierowa).Apartament znajduje się na parterze. Usytuowany jest bardzo korzystnie – od strony południowo-zachodniej.
Na powierzchnię apartamentu składają się:Mieszkanie sprzedawane jest w standardzie deweloperskim do swobodnej, własnej aranżacji. Istnieje możliwość wykończenia apartamentu „pod klucz”.Do mieszkania przynależy miejsce parkingowe. Docelowo w budynku znajdować się będzie 9 ekskluzywnych apartamentów o powierzchni od 26,53 m2 do 43,78 m2 usytuowanych na trzech kondygnacjach. Nowoczesną architekturę budynku uzupełniają duże balkony oraz ogródki, na których można zrobić tarasy. Obiekt do użytkowania tylko przez właścicieli i mieszkańców ośrodka. Jakość wykonania inwestycji gwarantuje sprawdzony Generalny Wykonawca PB Rytter – firma budowlana z ponad 20-letnim doświadczeniem, która zrealizowała już wiele nadmorskich inwestycji.
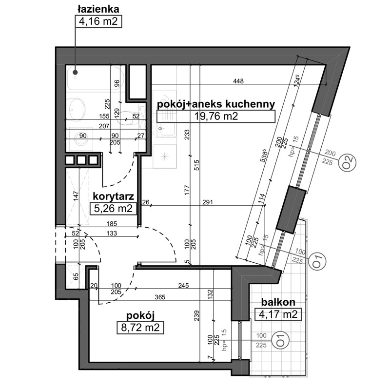
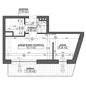
Nowoczesny 1-pokojowy apartament na sprzedaż o powierzchni 26,53 m² znajduje się w nowo budowanej inwestycji przy ul. Bursztynowej 7 w Łukęcinie (malowniczej, spokojnej miejscowości położonej 5 km od Dziwnówka i 4km od Pobierowa). Apartament znajduje się na parterze. Usytuowany jest od strony ulicy Bursztynowej.
Na powierzchnię apartamentu składają się:Mieszkanie sprzedawane jest w standardzie deweloperskim do swobodnej, własnej aranżacji. Istnieje możliwość wykończenia apartamentu „pod klucz”.
Do mieszkania przynależy miejsce parkingowe. Docelowo w budynku znajdować się będzie 9 ekskluzywnych apartamentów o powierzchni od 26,53 m2 do 43,78 m2 usytuowanych na trzech kondygnacjach. Nowoczesną architekturę budynku uzupełniają duże balkony oraz ogródki, na których można zrobić tarasy. Obiekt do użytkowania tylko przez właścicieli i mieszkańców ośrodka. Jakość wykonania inwestycji gwarantuje sprawdzony Generalny Wykonawca PB Rytter – firma budowlana z ponad 20-letnim doświadczeniem, która zrealizowała już wiele nadmorskich inwestycji.
Nowoczesny 2-pokojowy apartament na sprzedaż o powierzchni 32,66 m² znajduje się w nowo budowanej inwestycji przy ul. Bursztynowej 7 w Łukęcinie (malowniczej, spokojnej miejscowości położonej 5 km od Dziwnówka i 4km od Pobierowa). Apartament znajduje się na 1 piętrze. Posiada duży, przestronny balkon. Usytuowany jest bardzo korzystnie – od strony południowo-zachodniej.
Na powierzchnię apartamentu składają się:Mieszkanie sprzedawane jest w standardzie deweloperskim do swobodnej, własnej aranżacji. Istnieje możliwość wykończenia apartamentu „pod klucz”.
Do mieszkania przynależy miejsce parkingowe. Docelowo w budynku znajdować się będzie 9 ekskluzywnych apartamentów o powierzchni od 26,67 m2 do 43,38 m2 usytuowanych na trzech kondygnacjach. Nowoczesną architekturę budynku uzupełniają duże balkony oraz ogródki, na których można zrobić tarasy. Obiekt do użytkowania tylko przez właścicieli i mieszkańców ośrodka. Jakość wykonania inwestycji gwarantuje sprawdzony Generalny Wykonawca PB Rytter – firma budowlana z ponad 20-letnim doświadczeniem, która zrealizowała już wiele nadmorskich inwestycji.
Nowoczesny 2-pokojowy apartament na sprzedaż o powierzchni 43,38 m² znajduje się w nowo budowanej inwestycji przy ul. Bursztynowej 7 w Łukęcinie (malowniczej, spokojnej miejscowości położonej 5 km od Dziwnówka i 4km od Pobierowa). Apartament znajduje się na 1 piętrze. Jest to największy apartament w Baltic Residence. Posiada również duży, przestronny balkon. Usytuowany jest bardzo korzystnie – od strony południowo-zachodniej.
Na powierzchnię apartamentu składają się:Mieszkanie sprzedawane jest w standardzie deweloperskim do swobodnej, własnej aranżacji. Istnieje możliwość wykończenia apartamentu „pod klucz”.
Do mieszkania przynależy miejsce parkingowe. Docelowo w budynku znajdować się będzie 9 ekskluzywnych apartamentów o powierzchni od 26,67 m2 do 43,38 m2 usytuowanych na trzech kondygnacjach. Nowoczesną architekturę budynku uzupełniają duże balkony oraz ogródki, na których można zrobić tarasy. Obiekt do użytkowania tylko przez właścicieli i mieszkańców ośrodka. Jakość wykonania inwestycji gwarantuje sprawdzony Generalny Wykonawca PB Rytter – firma budowlana z ponad 20-letnim doświadczeniem, która zrealizowała już wiele nadmorskich inwestycji.
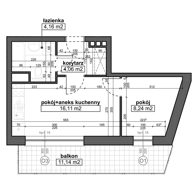
Nowoczesny 2-pokojowy apartament na sprzedaż o powierzchni 37,99 m² znajduje się w nowo budowanej inwestycji przy ul. Bursztynowej 7 w Łukęcinie (malowniczej, spokojnej miejscowości położonej 5 km od Dziwnówka i 4km od Pobierowa). Apartament znajduje się na 1 piętrze. Usytuowany jest od strony ulicy Bursztynowej.
Na powierzchnię apartamentu składają się:Mieszkanie sprzedawane jest w standardzie deweloperskim do swobodnej, własnej aranżacji. Istnieje możliwość wykończenia apartamentu „pod klucz”.
Do mieszkania przynależy miejsce parkingowe. Docelowo w budynku znajdować się będzie 9 ekskluzywnych apartamentów o powierzchni od 26,67 m2 do 43,38 m2 usytuowanych na trzech kondygnacjach. Nowoczesną architekturę budynku uzupełniają duże balkony oraz ogródki, na których można zrobić tarasy. Obiekt do użytkowania tylko przez właścicieli i mieszkańców ośrodka. Jakość wykonania inwestycji gwarantuje sprawdzony Generalny Wykonawca PB Rytter – firma budowlana z ponad 20-letnim doświadczeniem, która zrealizowała już wiele nadmorskich inwestycji.
Nowoczesny 2-pokojowy apartament na sprzedaż o powierzchni 32,57 m² znajduje się w nowo budowanej inwestycji przy ul. Bursztynowej 7 w Łukęcinie (malowniczej, spokojnej miejscowości położonej 5 km od Dziwnówka i 4km od Pobierowa). Apartament znajduje się na 2 piętrze. Posiada duży, przestronny balkon. Usytuowany jest bardzo korzystnie – od strony południowo-zachodniej.
Na powierzchnię apartamentu składają się:Mieszkanie sprzedawane jest w standardzie deweloperskim do swobodnej, własnej aranżacji. Istnieje możliwość wykończenia apartamentu „pod klucz”.
Do mieszkania przynależy miejsce parkingowe. Docelowo w budynku znajdować się będzie 9 ekskluzywnych apartamentów o powierzchni od 26,67 m2 do 43,38 m2 usytuowanych na trzech kondygnacjach. Nowoczesną architekturę budynku uzupełniają duże balkony oraz ogródki, na których można zrobić tarasy. Obiekt do użytkowania tylko przez właścicieli i mieszkańców ośrodka. Jakość wykonania inwestycji gwarantuje sprawdzony Generalny Wykonawca PB Rytter – firma budowlana z ponad 20-letnim doświadczeniem, która zrealizowała już wiele nadmorskich inwestycji.
Nowoczesny 2-pokojowy apartament na sprzedaż o powierzchni 43,62 m² znajduje się w nowo budowanej inwestycji przy ul. Bursztynowej 7 w Łukęcinie (malowniczej, spokojnej miejscowości położonej 5 km od Dziwnówka i 4km od Pobierowa). Apartament znajduje się na 2 piętrze. Jest to największy apartament w Baltic Residence. Posiada również duży, przestronny balkon. Usytuowany jest bardzo korzystnie – od strony południowo-zachodniej.
Na powierzchnię apartamentu składają się:Mieszkanie jest pięknie wykończone „pod klucz” wraz z wysokiej jakości meblami, sprzętami AGD, internetem i telewizorem.
Do mieszkania przynależy miejsce parkingowe. W budynku znajduje się 9 apartamentów o powierzchni od 26,53 m2 do 43,78 m2 usytuowanych na trzech kondygnacjach. Nowoczesną architekturę budynku uzupełniają duże balkony oraz ogródki, na których wykoane są tarasy. Obiekt do użytkowania tylko przez właścicieli i mieszkańców ośrodka. Jakość wykonania inwestycji gwarantuje sprawdzony Generalny Wykonawca PB Rytter – firma budowlana z ponad 20-letnim doświadczeniem, która zrealizowała już wiele nadmorskich inwestycji.
Nowoczesny 2-pokojowy apartament na sprzedaż o powierzchni 37,90 m² znajduje się w nowo budowanej inwestycji przy ul. Bursztynowej 7 w Łukęcinie (malowniczej, spokojnej miejscowości położonej 5 km od Dziwnówka i 4km od Pobierowa). Apartament znajduje się na 2 piętrze. Usytuowany jest od strony ulicy Bursztynowej.
Na powierzchnię apartamentu składają się:Mieszkanie sprzedawane jest w standardzie deweloperskim do swobodnej, własnej aranżacji. Istnieje możliwość wykończenia apartamentu „pod klucz”.
Do mieszkania przynależy miejsce parkingowe. Docelowo w budynku znajdować się będzie 9 ekskluzywnych apartamentów o powierzchni od 26,67 m2 do 43,38 m2 usytuowanych na trzech kondygnacjach. Nowoczesną architekturę budynku uzupełniają duże balkony oraz ogródki, na których można zrobić tarasy. Obiekt do użytkowania tylko przez właścicieli i mieszkańców ośrodka. Jakość wykonania inwestycji gwarantuje sprawdzony Generalny Wykonawca PB Rytter – firma budowlana z ponad 20-letnim doświadczeniem, która zrealizowała już wiele nadmorskich inwestycji